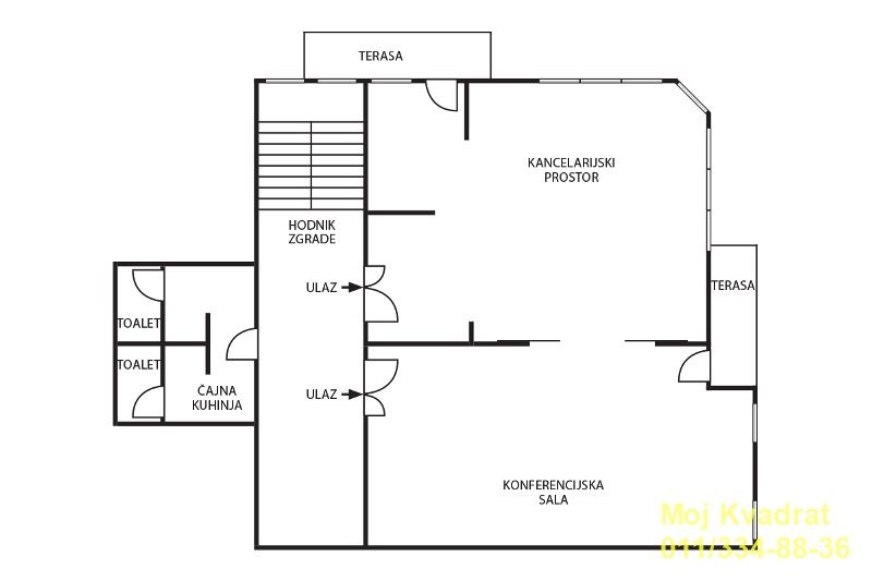
105m² 1.800€
Beograd, Palilula, Palilulska pijaca, 27. marta
Objavljen: 20.02.2026. / Izmenjen:
20.02.2026.
Tip: poslovni prostor
Cena: 1800.00 EUR
Površina: 105.00 m2
Grad: Beograd
Opština: Palilula
Deo: Palilulska pijaca
Ulica: 27. marta
Sprat: 1
Spratnost: 4
Soba: 2
Godina izgradnje: 2008
Kontakt:
Moj Kvadrat doo
011/334 88 36
065/303 94 39
http://www.kvadratnekretnine.com





