pregled nekretnine ID: 367339
prodaja

195m² 550.000€
Beograd, Vračar, Hram Svetog Save, Stojana Protića

Objavljen: 23.02.2026. / Izmenjen: 23.02.2026.


Tip: kuća

Cena: 550000.00 EUR

Površina: 195.00 m2

Grad: Beograd

Opština: Vračar

Deo: Hram Svetog Save

Ulica: Stojana Protića

Godina izgradnje: 1961

Prijavi problem  |  Pošalji na e-mail


Kontakt:

Moj kvadrat doo

011/334-88-36

065/3039439

www.kvadratnekretnine.com

Opis:

  • Uknjiženo
  • Telefon
  • Kanalizacija
  • Interfon

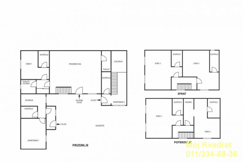
Vračar, Hram Svetog Save - Stojana Protića

kuća, 195m2, PR+1+PTK, EG, telefon, interfon, plac 2.2 ara

Dvorišna kuća na jednoj od najekskluzivnijih lokacija u gradu. Sastoji se od glavnog objekta na tri etaže, kao i dva odvojena objekta pretvorena u stambeni prostor.

Prizemlje: ulazni deo (soba), dve odvojene sobe i dva kupatila.
Prvi sprat: dve sobe i dva kupatila.
Potkrovlje: hodnik, dve sobe i dva kupatila.

Kuća je pogodna kako za život, tako i za poslovni prostor.

Odlična investicija!

Uknjižena kao dva stana na 29m2 i 166m2.

Agencijska provizija 2%.

Agent Vojka Joksović: 064/55-55-196 (licenca br.1790)






0/1000