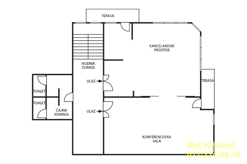
105m² 525.000€
Beograd, Palilula, Palilulska pijaca, 27. marta
Objavljen: 16.10.2025. / Izmenjen:
16.10.2025.
Tip: poslovni prostor
Cena: 525000.00 EUR
Površina: 105.00 m2
Grad: Beograd
Opština: Palilula
Deo: Palilulska pijaca
Ulica: 27. marta
Sprat: 1
Spratnost: 4
Soba: 2
Kontakt:
Moj Kvadrat doo
011/334 88 36
065/303 94 39
http://www.kvadratnekretnine.com





