pregled nekretnine ID: 363635
prodaja

90m² 210.000€
Beograd, Zemun, Gospodska

Objavljen: 20.10.2025. / Izmenjen: 21.10.2025.


Tip: stan

Cena: 210000.00 EUR

Površina: 90.00 m2

Grad: Beograd

Opština: Zemun

Ulica: Gospodska

Sprat: 1

Spratnost: 2

Soba: 4

Prijavi problem  |  Pošalji na e-mail


Kontakt:

Moj Kvadrat doo

011/334 88 36

065/303 94 39

http://www.kvadratnekretnine.com

Opis:

  • Klima
  • Parking
  • Kanalizacija

Zemun, Donji grad - Gospodska

4.0, 90m2, I+PTK, TA, dve klime, parking

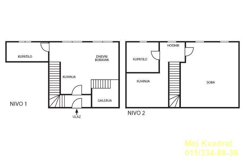
U ponudi dupleks u pešačkoj zoni Zemuna. Stan je renoviran 2020. godine u francuskom i Boho stilu. Takođe, urađen je i nov krov.

Stan se sastoji iz dva nivoa, ali može da funkcioniše i kao dve odvojene stambene jedinice.
Donji nivo: dnevna soba sa kuhinjom i trpezarijom, spavaća soba na galeriji i kupatilo;
Gornji nivo: soba, kuhinja i kupatilo.

Visina plafona u stanu se kreće od 2.35m - 4m. Stan poseduje dve klime i jasenov parket.

Stanu pripada i jedno parking mesto u dvorištu.

Uknjižen na 63m2 korisne površine.

Agencijska provizija 2%

Agent: Svjetlana Janjoš 069/500-19-70 (licenca br. 4587)






0/1000