pregled nekretnine ID: 363657
prodaja

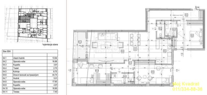
142m² 639.000€
Beograd, Vračar, Kalenić pijaca, Loznička

Objavljen: 20.10.2025. / Izmenjen: 20.10.2025.


Tip: stan

Cena: 639000.00 EUR

Površina: 142.00 m2

Grad: Beograd

Opština: Vračar

Deo: Kalenić pijaca

Ulica: Loznička

Sprat: 2

Spratnost: 6

Soba: 4

Godina izgradnje: 2023

Prijavi problem  |  Pošalji na e-mail


Kontakt:

Moj Kvadrat doo

011/334 88 36

065/303 94 39

http://www.kvadratnekretnine.com

Opis:

  • Lift
  • Parking
  • Centralno grejanje
  • Kanalizacija
  • Novogradnja
  • Terasa
  • Interfon

Vračar, Kalenić pijaca - Loznička, BEZ PROVIZIJE ZA KUPCE!

4.0, 142m2 (terasa), 2/6, CG, lift, interfon, garaža

U jednoj od najlepših ulica na Vračaru, u blizini Bulevara kralja Aleksandra, gradi se elegantna i moderna zgrada. Objekat se gradi od najkvalitetnijih materijala i omogućiće kupcima vrhunske uslove za život. Stanovi su funkcionalno organizovani i savremeno dizajnirani. Ulica je mirna, jedmosmerna sa obostranim drvoredom.

Stanovi ove strukture se nalaze i na drugim spratovima.

Cena stana je sa uračunatim PDV-om.

Garažno mesto je moguće kupiti po ceni od 40.000EUR (sa uračunatim PDV-om).

Objekat je planiran da bude završen avgusta 2025. godine.

Građevinska dozvola.

Agent Sava Vuletić: 062/14-57-616 (licenca br.3573)






0/1000