pregled nekretnine ID: 363814
prodaja

62m² 270.000€
Beograd, Vračar, Crveni krst, Vilovskog

Objavljen: 25.10.2025. / Izmenjen: 25.10.2025.


Tip: stan

Cena: 270000.00 EUR

Površina: 62.00 m2

Grad: Beograd

Opština: Vračar

Deo: Crveni krst

Ulica: Vilovskog

Sprat: 2

Spratnost: 5

Soba: 3

Prijavi problem  |  Pošalji na e-mail


Kontakt:

Moj Kvadrat doo

011/334 88 36

065/303 94 39

http://www.kvadratnekretnine.com

Opis:

  • Lift
  • Parking
  • Kanalizacija
  • Novogradnja
  • Interfon

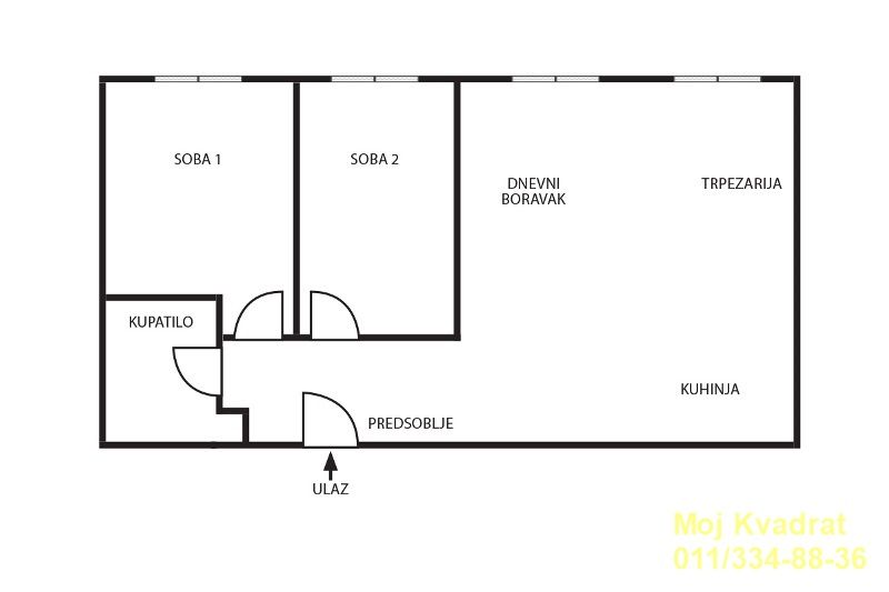
Vračar, Crveni krst - Vilovskog

3.0, 62m2, 2/5, EG, lift, interfon

Luksuzno opremljen stan u novoizgrađenom stambenom objektu vrhunskog kvaliteta na odličnoj lokaciji kod Beogradskog dramskog pozorišta.

Stan poseduje komotan dnevni boravak sa kompletno opremljenom kuhinjom, trpezariju, dve spavaće sobe, kupatilo i hodnik. Prodaje se namešten, kao na slikama.

Odmah useljiv!

Postoji mogućnost kupovine garažnog mesta po ceni od 20.000 evra.

Građevinska dozvola.

Agencijska provizija 2%

Agent Sava Vuletić 062/14-57-616 (licenca br.3573)






0/1000