pregled nekretnine ID: 366500
prodaja

132m² 505.000€
Beograd, Vračar, Centar (Vračar), Krunska

Objavljen: 24.01.2026. / Izmenjen: 26.01.2026.


Tip: stan

Cena: 505000.00 EUR

Površina: 132.00 m2

Grad: Beograd

Opština: Vračar

Deo: Centar (Vračar)

Ulica: Krunska

Soba: 5

Prijavi problem  |  Pošalji na e-mail


Kontakt:

Moj Kvadrat doo

011/334 88 36

065/303 94 39

http://www.kvadratnekretnine.com

Opis:

  • Uknjiženo
  • Telefon
  • Klima
  • Centralno grejanje
  • Kanalizacija
  • Terasa
  • Interfon
  • Podrum

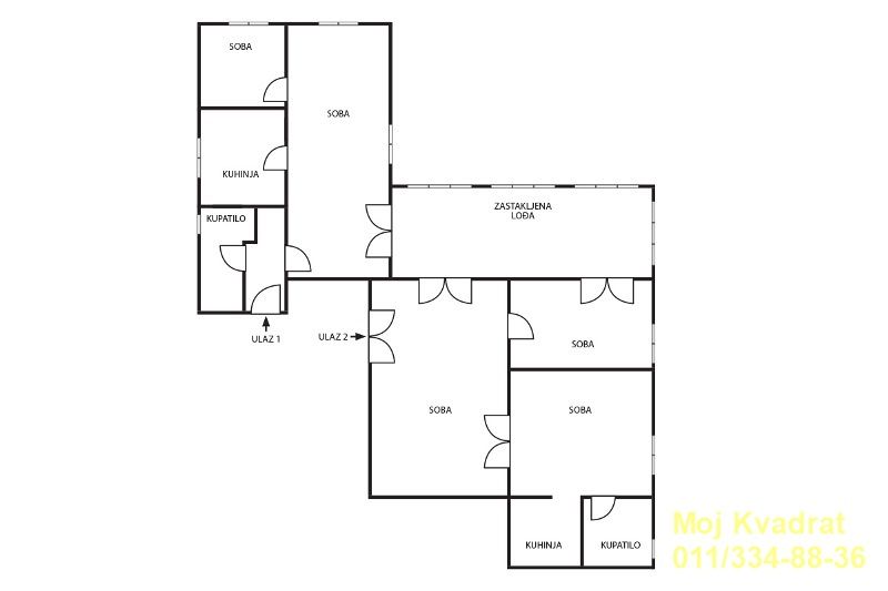
Vračar, Krunski venac - Krunska

5.0, 132m2 (terasa 20m2), VPR/2, CG, tri klime, telefon, interfon, ostava (10m2), dva podruma

U ponudi izuzetan, očuvan salonac u najlepšem delu Krunske ulice, u blizini Mađarske ambasade. Nalazi se u predratnoj zgradi na visokom prizemlju, od ukupno dva sprata. Dvostrano je orijentisan, izuzetno svetao, sa velikom zastakljenom terasom površine 20m2.

Stan je funkcionalan i može da se podeli na dve stambene jedinice. Pored centralnog salona, poseduje dve kuhinje, dva mokra čvora i tri sobe. Stanu pripada i ostava (10m2), kao i dva podruma.

Grejanje je centralno, a poseduje i tri klime. U stanu je izvorno hrastov parket, dok je kompletna spoljašnja stolarija zamenjena i urađena je nova elektro i vodovodna instalacija.

Odmah useljiv!

Uknjižen bez upisane kvadrature, mereno ima 132m2.

Agencijska provizija 2%

Agent: Gordana Milošević 069/129-79-72 (licenca br.1763)






0/1000