pregled nekretnine ID: 366603
prodaja

75m² 206.085€
Beograd, Zemun, Pazovački put

Objavljen: 28.01.2026. / Izmenjen: 28.01.2026.


Tip: stan

Cena: 206085.00 EUR

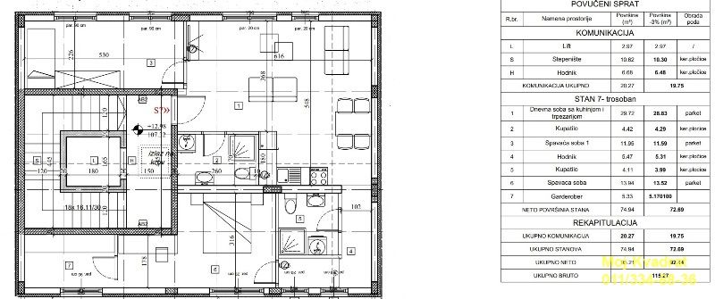
Površina: 75.00 m2

Grad: Beograd

Opština: Zemun

Ulica: Pazovački put

Sprat: 4

Spratnost: 4

Soba: 3

Godina izgradnje: 2025

Prijavi problem  |  Pošalji na e-mail


Kontakt:

Moj Kvadrat doo

011/334 88 36

065/303 94 39

http://www.kvadratnekretnine.com

Opis:

  • Klima
  • Lift
  • Parking
  • Kanalizacija
  • Novogradnja
  • Interfon

Zemun, Sutjeska - Pazovački put

3.0, 75m2, podno grejanje/struja, inverter klima, lift, 4/4, interfon, parking, garaža

Na Pazovačkom putu gradi se zgrada sa tri sprata + povučeni sprat. Zgrada ima i garažu.

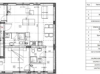
Stan je funkcionalan i sastoji se od dnevnog boravka sa kuhinjom, tri spavaće sobe, hodnika i kupatila.

Stanovi su vrlo funkcionalni, grade se sa vrlo kvalitetnim materijalima - izolacija stiropor 10, španska keramika, PVC stolarija sa troslojnim staklom. Grejanje je podno (na struju) i svaki stan ima svoj kotao, kao i inverter klimu.

Predviđeno useljenje je maj 2026. godine, a predviđena izgrađenost kada će biti moguća kupovina preko stambenog kredita je oktobar 2025. godine.

U cenu stana je uračunat PDV.

Građevinska dozvola.

Agencijska provizija 2%

Agent: Mirela Perović 060/72-77-557 (licenca br.2566)






0/1000