pregled nekretnine ID: 367304
prodaja

108m² 420.000€
Beograd, Zvezdara, Vukov spomenik, Zahumska

Objavljen: 21.02.2026. / Izmenjen: 21.02.2026.


Tip: stan

Cena: 420000.00 EUR

Površina: 108.00 m2

Grad: Beograd

Opština: Zvezdara

Deo: Vukov spomenik

Ulica: Zahumska

Soba: 3

Godina izgradnje: 2006

Prijavi problem  |  Pošalji na e-mail


Kontakt:

Moj kvadrat doo

011/334-88-36

065/3039439

www.kvadratnekretnine.com

Opis:

  • Uknjiženo
  • Lift
  • Centralno grejanje
  • Kanalizacija
  • Interfon
  • Podrum

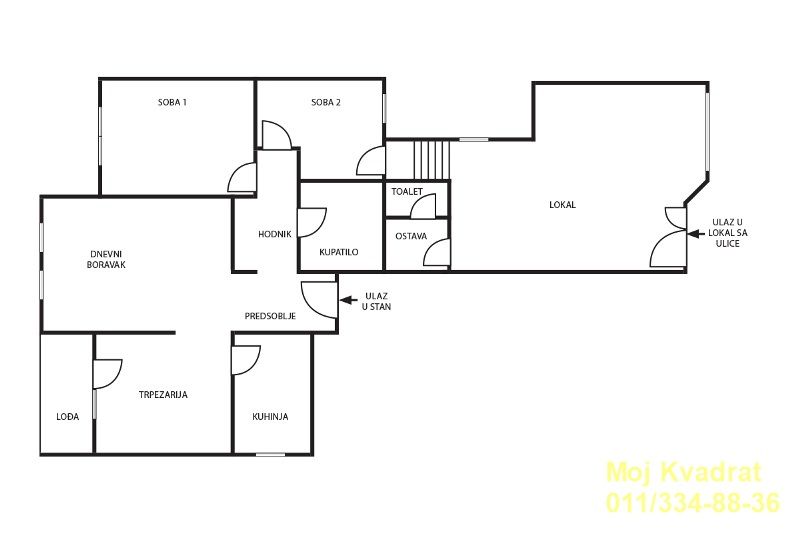
Zvezdara, Vukov spomenik - Zahumska

3.0, 108m2 (stan 70m2 + lođa 4m2 + poslovni prostor 34m2), VPR/5, CG, lift, interfon, podrum

U ponudi stan 74m2 sa poslovnim prostorom 34m2. Poslovni prostor se nalazi u prizemlju, a stan na visokom prizemlju i povezani su sa 4 stepenika.

Stan se sastoji od dnevnog boravka, trpezarije sa izlazom na lođu, kuhinje sa prirodnom ventilacijom, dve spavaće sobe, kupatila i hodnika. Visina plafona u stanu iznosi 2,70m. Stan poseduje i pripadajući podrum.

Poslovni prostor ima jednu prostoriju i mokri čvor. Visina plafona iznosi 3,40m.

Stan se prodaje sa nameštajem, a može i bez. Poslovni prostor se prodaje sa nameštajem i idealan je za advokatsku kancelariju, knjigovodstvenu agenciju, ordinaciju... Stan i prostor su uknjiženi na firmu.

Retko u ponudi kombinovanje ličnog života i posla. Odlično kao investicija.

Uknjižen stan na 70m2, mereno sa lođom ima 74m2 i uknjižen poslovni prostor na 34m2.

Agencijska provizija 2%

Agent: Vojka Joksović 064/55-55-196 (licenca br.1790)






0/1000