pregled nekretnine ID: 367464
prodaja

42m² 92.400€
Beograd, Zvezdara, Nikole Altomanovića

Objavljen: 26.02.2026. / Izmenjen: 26.02.2026.


Tip: stan

Cena: 92400.00 EUR

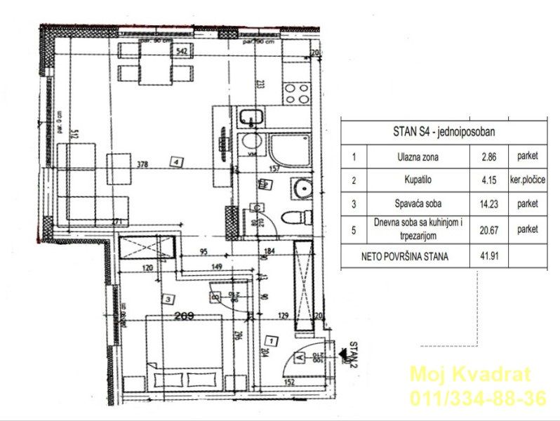
Površina: 42.00 m2

Grad: Beograd

Opština: Zvezdara

Ulica: Nikole Altomanovića

Soba: 1.5

Godina izgradnje: 2025

Prijavi problem  |  Pošalji na e-mail


Kontakt:

Moj kvadrat doo

011/334-88-36

065/3039439

www.kvadratnekretnine.com

Opis:

  • Klima
  • Parking
  • Kanalizacija
  • Novogradnja
  • Interfon

Zvezdara, Vojvode Vlahovića - Nikole Altomanovića

1.5, 42m2, PR/2, podno grejanje/struja, inverter klima, interfon, parking, garaža

U mirnoj ulici, u naselju Vojvode Vlahović gradi se zgrada koja ima prizemlje i dva sprata i garažu.

Prostorije: dnevni boravak sa kuhinjom i trpezarijom, hodnik, spavaća soba i kupatilo.

Stanovi su vrlo funkcionalni, grade se sa vrlo kvalitetnim materijalima - izolacija stiropor 10, španska keramika, PVC stolarija sa troslojnim staklom. Grejanje je podno (na struju) i svaki stan ima svoj kotao, kao i inverter klimu.

Zgrada ima svu potrebnu dokumentaciju i kada bude izgrađeno 60% moguća je kupovina na kredit.

U cenu stana je uračunat PDV.

Građevinska dozvola.

Agencijska provizija 2%

Agent: Mirela Perović 060/72-77-557 (licenca br.2566)






0/1000