156m² 600.000€
Beograd, Stari grad, Centar (Stari grad), Kosovska
Objavljen: 24.03.2026. / Izmenjen:
24.03.2026.
Tip: stan
Cena: 600000.00 EUR
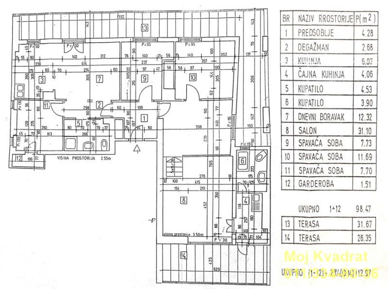
Površina: 156.00 m2
Grad: Beograd
Opština: Stari grad
Deo: Centar (Stari grad)
Ulica: Kosovska
Sprat: 8
Spratnost: 8
Soba: 5
Godina izgradnje: 1963
Kontakt:
Moj kvadrat doo
011/334-88-36
065/3039439
www.kvadratnekretnine.com





